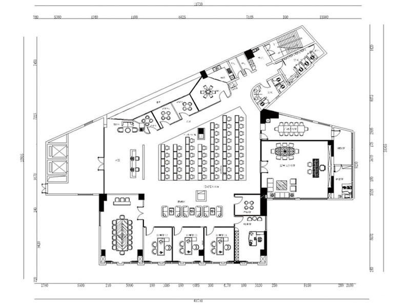
1780平方米金融公司辦公室裝修設計
類型
金融/貿易
1780平方米金融公司辦公室裝修設計
金融/貿易
1780平方米金融公司辦公室裝修設計

1. 辦公空間規劃:
根據金融公司的需求和工作流程,合理規劃辦公空間,包括工作區、會議區、接待區、休息區和設施區等。確保各個區域之間的布局合理,便于員工之間的溝通和協作。

2. 辦公區域設計:
- 工作區:規劃舒適、開放的工作區域,配置適宜的辦公桌、辦公椅和儲物柜等辦公設備,以提供員工一個舒適、高效的工作環境??紤]員工的隱私和工作需求,合理設置屏風和隔斷。
- 會議區:設計一個專門的會議室,配備高品質的會議桌椅和先進的會議設備,如大屏幕顯示器、音頻設備和視頻會議設施。會議室的設計應注重專業性和實用性,以提供良好的會議體驗和協作環境。
- 接待區:設計一個溫馨、專業的接待區,提供舒適的座位和舒緩的音樂,以營造出專業和熱情的接待環境。此區域還可以用于客戶咨詢和簽約服務。
- 休息區:設置一個舒適的休息區域,配備舒適的沙發、茶幾和休閑椅,供員工放松休息和社交交流。這個區域應提供一個放松和舒緩的環境,以提升員工的工作效率和士氣。
- 設施區:規劃合適的設施區,包括打印區、復印區、文件存儲區等,方便員工進行辦公和文件管理。

3. 裝飾元素:
運用適當的裝飾元素,如綠植、藝術品、壁畫等,營造出舒適、專業和高檔的氛圍。選擇高質量的裝飾材料,如木材、石材和玻璃等,以增加空間的質感和品味。

4. 照明設計:
注重照明設計,通過合理的燈光布置來提供明亮、舒適的照明效果。選擇節能、高亮度的照明設備和燈飾,如LED燈、吊燈和臺燈等,以創造出良好的工作照明和舒適的光線氛圍。

5. 電力和網絡:
根據辦公設備的需求,規劃合理的電源插座和網絡接口位置,確保辦公設備的正常使用和數據傳輸。
通過以上設計說明,我們希望打造一個舒適、專業和高效的金融公司辦公室環境,為員工提供一個舒適、高效的工作場所,同時為客戶提供專業和熱情的服務體驗。這將是一個符合主題和金融行業要求的裝修設計。
