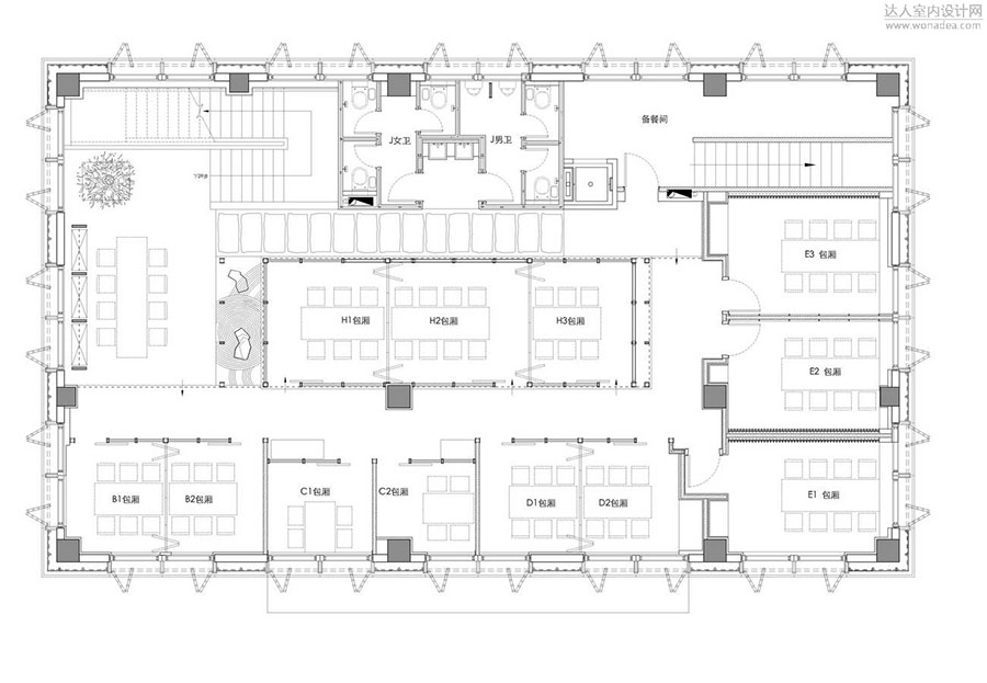
上海裝修設計公司之660平工業風格主題餐廳設計效果,在室內空間營造上,突出鮮明特色形成差異化優勢成為設計重點,依照目標人群與餐廳檔次定位,采用國際氣質的裝飾主義表現手法,通過豐富的色彩變化與高檔材質的運用及多樣設計感強烈的陳設,凸顯了一個身處喧嘩都市的高端餐飲空間格調。
類型
餐飲空間設計
上海裝修設計公司之660平工業風格主題餐廳設計效果,在室內空間營造上,突出鮮明特色形成差異化優勢成為設計重點,依照目標人群與餐廳檔次定位,采用國際氣質的裝飾主義表現手法,通過豐富的色彩變化與高檔材質的運用及多樣設計感強烈的陳設,凸顯了一個身處喧嘩都市的高端餐飲空間格調。
餐飲空間設計
上海裝修設計公司之660平工業風格主題餐廳設計效果,在室內空間營造上,突出鮮明特色形成差異化優勢成為設計重點,依照目標人群與餐廳檔次定位,采用國際氣質的裝飾主義表現手法,通過豐富的色彩變化與高檔材質的運用及多樣設計感強烈的陳設,凸顯了一個身處喧嘩都市的高端餐飲空間格調。







一站式工程裝修設計服務
Copyright ? 2018-2038上海古都建筑設計集團有限公司版權所有 侵權必究
免責聲明:網站部份內容來互聯網或者AI輔助生成,不代表古都建筑設計的意見,如有侵權請聯系刪除
網站備案:滬ICP備11026211號技術支持:網站優化https://www.xpci.com.cn/丨 滬公網安備 號


