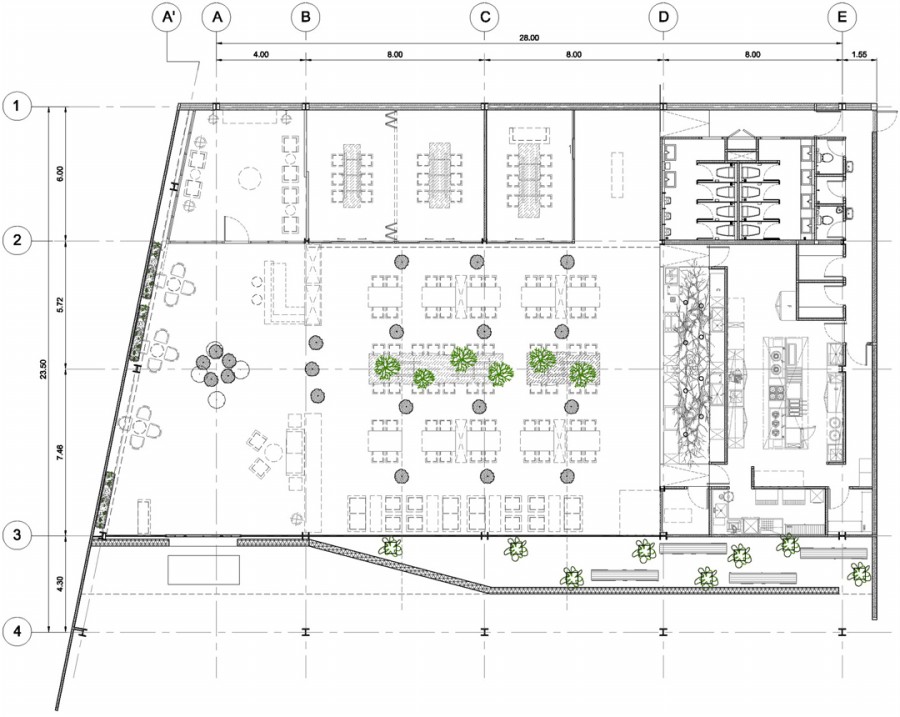
上海裝修設計公司之500平中式餐館設計裝修實景圖, 以極簡主義的黑色色彩輔以天然水泥灰色,使空間有一致的色彩。原料與水泥磚、鋼板聯結,營造出清潔輕便的氣氛。在穿透性和封鎖性的布局中,咱們特意利用了相當多的鳥籠燈來離別空間。光純正是天然的,使人在視覺上孕育產生一種封鎖的、高度的視覺張力和精力內涵。
類型
餐飲空間設計
上海裝修設計公司之500平中式餐館設計裝修實景圖, 以極簡主義的黑色色彩輔以天然水泥灰色,使空間有一致的色彩。原料與水泥磚、鋼板聯結,營造出清潔輕便的氣氛。在穿透性和封鎖性的布局中,咱們特意利用了相當多的鳥籠燈來離別空間。光純正是天然的,使人在視覺上孕育產生一種封鎖的、高度的視覺張力和精力內涵。
餐飲空間設計
上海裝修設計公司之500平中式餐館設計裝修實景圖, 以極簡主義的黑色色彩輔以天然水泥灰色,使空間有一致的色彩。原料與水泥磚、鋼板聯結,營造出清潔輕便的氣氛。在穿透性和封鎖性的布局中,咱們特意利用了相當多的鳥籠燈來離別空間。光純正是天然的,使人在視覺上孕育產生一種封鎖的、高度的視覺張力和精力內涵。









一站式工程裝修設計服務
Copyright ? 2018-2038上海古都建筑設計集團有限公司版權所有 侵權必究
免責聲明:網站部份內容來互聯網或者AI輔助生成,不代表古都建筑設計的意見,如有侵權請聯系刪除
網站備案:滬ICP備11026211號技術支持:網站優化https://www.xpci.com.cn/丨 滬公網安備 號


